Bilocale nuovo con giardino privato – Classe A4 – Piano terra

In vendita
Appartamento
San Giovanni in Persiceto (San Matteo della Decima)
185.000 €
Descrizione
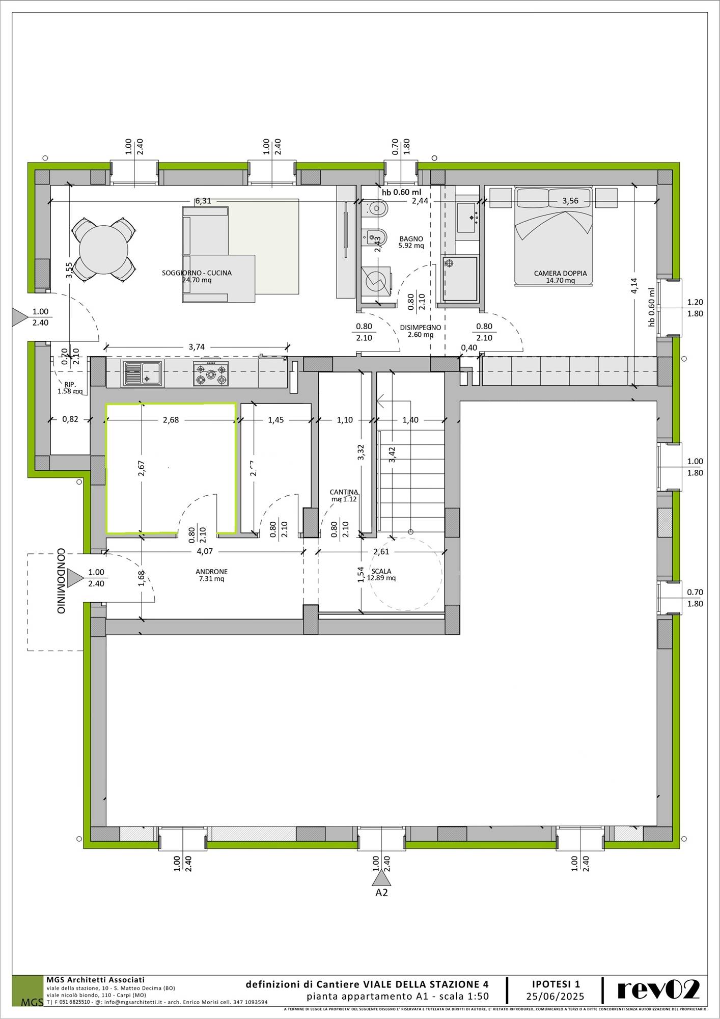
in zona centrale, in intervento di demolizione e ricostruzione con criteri antisismici, proponiamo in vendita bilocale di nuova costruzione in classe energetica A4, situato al piano terra e dotato di ingresso indipendente e giardino privato.
L’appartamento è composto da:
ingresso indipendente
ampio soggiorno con cucina a vista
zona notte con camera matrimoniale
bagno finestrato
ripostiglio
Completa la proprietà un giardino privato di circa 100 mq, accessibile direttamente dalla zona giorno, oltre a posto auto interno nel cortile.
Costruzione moderna con elevate prestazioni energetiche, isolamento termo-acustico, impianti ad alta efficienza e finiture di qualità.
Importanti agevolazioni fiscali – Sismabonus Acquisti
L’immobile rientra nel Sismabonus Acquisti per edifici demoliti e ricostruiti da impresa.
Detrazione fiscale fino a 48.000 € in caso di acquisto come abitazione principale.
Recupero in 10 anni, pari a 4.800 € all’anno.
Prezzo di vendita: 185.000 €
Costo reale dopo detrazioni: circa 137.000 €
Nessuna provvigione di mediazione è dovuta dall’acquirente per questo intervento.
Per maggiori informazioni, documentazione tecnica e per prenotare una visita, contatta la nostra agenzia, saremo lieti di accompagnarti nella scelta della tua nuova casa.
La spettanza delle agevolazioni è subordinata al rispetto dei requisiti di legge ed è da verificarsi con il notaio rogante e il proprio consulente fiscale.
Caratteristiche principali
Codice:
V5023B
Città:
San Giovanni in Persiceto (San Matteo della Decima)
Categoria:
Appartamento
Locali:
2
Camere:
1
Bagni:
1
Mq:
67
Mq Giardino:
100
Piano:
Terra
Anno:
2026
Classe energetica:
A4
Stato Immobile:
In Costruzione
Grado:
Signorile
Posizione:
Centro
Panorama:
Vista Giardino
Orientamento:
Est Nord Ovest
Lati Liberi:
3
Giardino:
Privato
Arredi:
Non Arredato
Tipo Soggiorno:
Soggiorno
Tipo Cucina:
Abitabile
Riscaldamento:
Autonomo
Tipo Riscaldam.:
Caldaia
Tipo Impianto:
Aria
Fonte Energetica:
Metano
Acqua Calda:
Autonoma
Raffrescamento:
Split
Infissi:
PVC Doppio Vetro
Serramenti:
Nuovo
Persiana:
Persiana PVC
Pavim. Giorno:
Ceramica
Pavim. Notte:
Ceramica
Pavim. Cucina:
Ceramica
Pavim. Bagno:
Ceramica
Accesso Disabili:
Nessuna Barriera
Accessori
Aria Condizionata
Cancello Elettrico
Doppi Vetri
Impianto Satellitare
Ingresso Indipendente
Porta Blindata
Ripostiglio
Zanzariere
Mappa
VIALE STAZIONE, 4 - San Giovanni in Persiceto (BO)
Richiedi informazioni
Invia
Cookie preference