Appartamento quadrilocale ristrutturato con fotovoltaico

In vendita
Appartamento
Cento
182.000 €
Descrizione
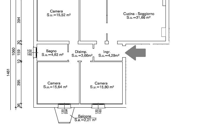
Cento (FE) - l'immobiliare San Matteo propone in vendita un luminoso appartamento quadrilocale situato al terzo piano di una palazzina senza ascensore, completamente ristrutturato con intervento Superbonus 110%.
L’abitazione si apre su un comodo ingresso che conduce a un ampio salotto con cucina a vista, ideale per vivere la zona giorno in modo pratico e moderno. La zona notte comprende tre spaziose camere matrimoniali e un bagno finestrato. Completano la proprietà una cantina e un garage singolo.

L’immobile è dotato di impianto di climatizzazione e impianto fotovoltaico, oltre a cappotto termico che garantisce un ottimo comfort energetico e un significativo risparmio sui consumi. La posizione centrale e ben servita consente di raggiungere comodamente il centro del paese e tutti i principali servizi.
Caratteristiche principali
-Posizione comoda e centrale
-Spazi interni ben distribuiti
-Completamente ristrutturato
-Garage e Cantina
-Impianto fotovoltaico e cappotto termico
Prezzo: €182.000
Rif. V_1363
Per maggiori informazioni e per prenotare una visita:
chiamare o contattare su whatsapp il numero 051 6827447, oppure scrivere a info@immobiliaresanmatteo.it.
Caratteristiche principali
Codice:
V_1363_
Città:
Cento
Categoria:
Appartamento
Locali:
4
Camere:
3
Bagni:
1
Mq:
115
Box:
1
Mq Box:
16
Balconi:
1
Classe energetica:
D
Stato Immobile:
Ristrutturato
Grado:
Economico
Posizione:
Centro
Orientamento:
Est Sud Ovest
Lati Liberi:
3
Giardino:
Comune
Arredi:
Arredato
Tipo Soggiorno:
Soggiorno
Tipo Cucina:
A Vista
Riscaldamento:
Autonomo
Tipo Riscaldam.:
Caldaia
Tipo Impianto:
Radiatori
Fonte Energetica:
Gas
Acqua Calda:
Autonoma
Raffrescamento:
Split
Infissi:
PVC Doppio Vetro
Serramenti:
Nuovo
Persiana:
Tapparella PVC
Pavim. Giorno:
Laminato
Pavim. Notte:
Laminato
Pavim. Cucina:
Laminato
Pavim. Bagno:
Ceramica
Accesso Disabili:
No
Accesso interno disabili:
Non accessibile
Isolamento:
Presente
Isolamento termico:
Cappotto esterno
Accessori
Aria Condizionata
Camino
Doppi Vetri
Fibra Ottica
Impianto Fotovoltaico
Parco Condominiale
Passaggio Pedonale
Porta Blindata
Richiedi informazioni
Invia
Cookie preference