AMPIA PROPRIETA' IN CONTESTO COLONIALE CON ABITAZIONE, FIENILE E GIARDINO

In vendita
Rustico/Casale
San Giovanni in Persiceto (San Matteo della Decima)
169.000 €
Descrizione
Immobiliare San Matteo propone in vendita un’interessante proprietà immersa nella campagna di San Matteo della Decima, in un suggestivo contesto coloniale, ideale per chi cerca ampi spazi, tranquillità e la possibilità di personalizzare secondo le proprie esigenze.

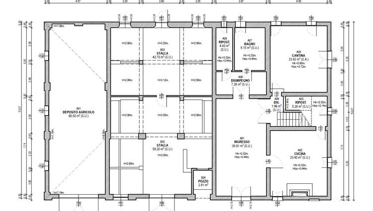
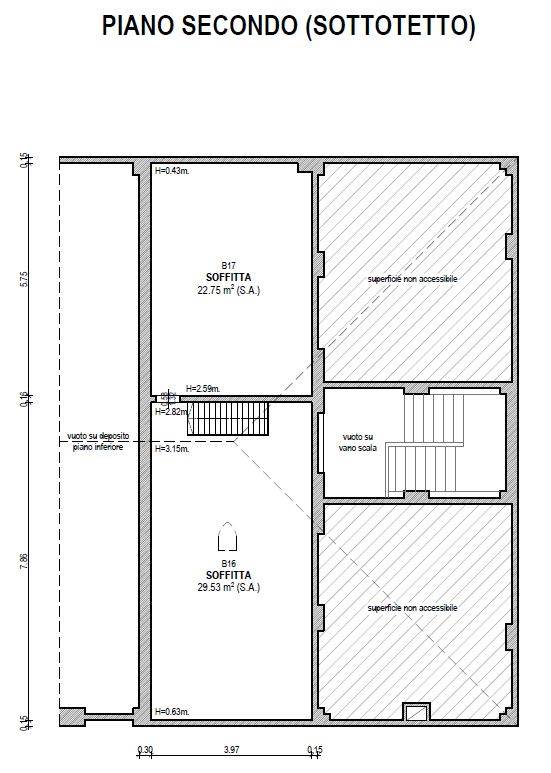
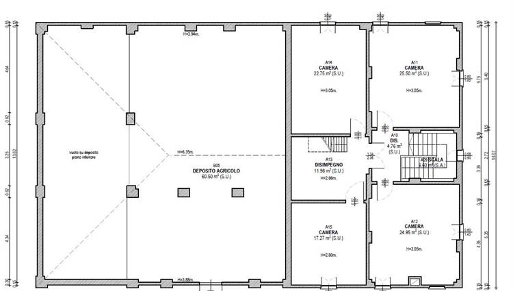
Il fabbricato principale, è suddiviso in due corpi distinti: la porzione abitativa e un fienile adiacente. L’abitazione, caratterizzata da una metratura generosa di circa 255 mq, si sviluppa su due livelli più un sottotetto ed è così suddivisa: al piano terra ingresso, cucina abitabile, due ripostigli, cantina, disimpegno e un bagno; al primo piano quattro camere da letto; al piano sottotetto, uno spazio utilizzabile come deposito.
Accanto all’abitazione si trova un grande fienile di circa 330 mq, attualmente utilizzato come magazzino, che si presta a molteplici usi. La proprietà comprende inoltre due fabbricati accessori: un forno e un silos, testimonianza della vocazione agricola del complesso.
A completare il tutto, un ampio giardino di circa 3.200 mq circonda la proprietà, garantendo privacy e spazi verdi ideali per il relax o per eventuali progetti di valorizzazione.

Caratteristiche principali:
- Contesto coloniale
- Ampie metrature ideali per una ristrutturazione su misura
- Grande giardino esclusivo
Prezzo € 169.000
Riferimento V_2335
Per ulteriori informazioni o per fissare un appuntamento:
Tel/WhatsApp: 051 6827447
Email: info@immobiliaresanmatteo.it
Caratteristiche principali
Codice:
V_2335
Città:
San Giovanni in Persiceto (San Matteo della Decima)
Categoria:
Rustico/Casale
Locali:
6
Camere:
4
Bagni:
1
Mq:
255
Mq Box:
330
Mq Giardino:
3200
Classe energetica:
G
332,53
Stato Immobile:
Da Ristrutturare
Grado:
Medio
Posizione:
Campagna
Panorama:
Vista Aperta
Orientamento:
Nord Ovest Sud Est
Lati Liberi:
4
Giardino:
Privato
Tipo Soggiorno:
Salone
Tipo Cucina:
Abitabile
Infissi:
Legno
Serramenti:
Da Sostituire
Persiana:
Oscurante Legno
Accessori
Camino
Mappa
via Reno Vecchio, 1A - San Giovanni in Persiceto (BO)
Video
Richiedi informazioni
Invia
Cookie preference